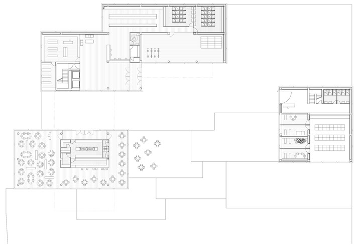
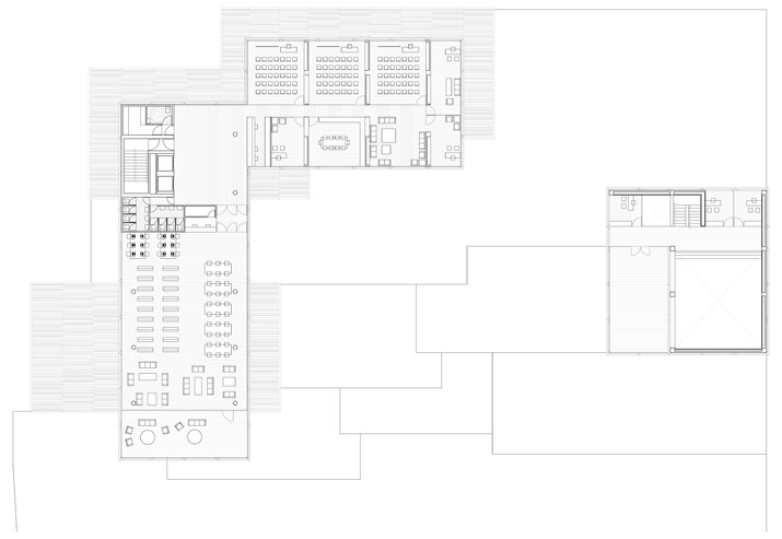
BARCODE. prof. Jesús Bazal In the port of San Sebastian has long been a building virtually obsolete. What was once a fish market of an important fishing port today is a non-use construction. The project consists of recovering that space to the harbor area, keeping the small fishing fleet and providing different uses to the marina. The wooden facade cladding keeps the appearance that has always had this place when it was surrounded by stacked fish boxes. It also generates a meeting point and recovers the link of the dock with the sea through a public space that descends to the water.