Hotel in Canfranc. prof. Miguel Ángel Alonso del Val
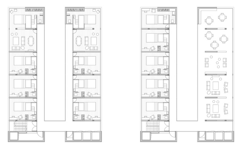
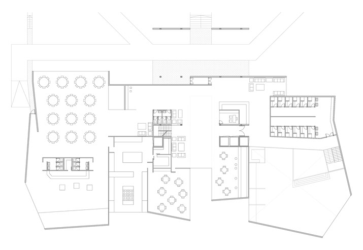
collaboration. Andrés Amor, Miguel Muriana, Victor Gomez The exercise consisted of projecting a mountain hotel in Aragon Pyrenees. The solution is based on a plinth that hosts service spaces in a defragmented distribution. Two parallel and symmetrical towers emerge from this plinth. The layout of the rooms allows views are enjoyed from the bed or from the bathtub.