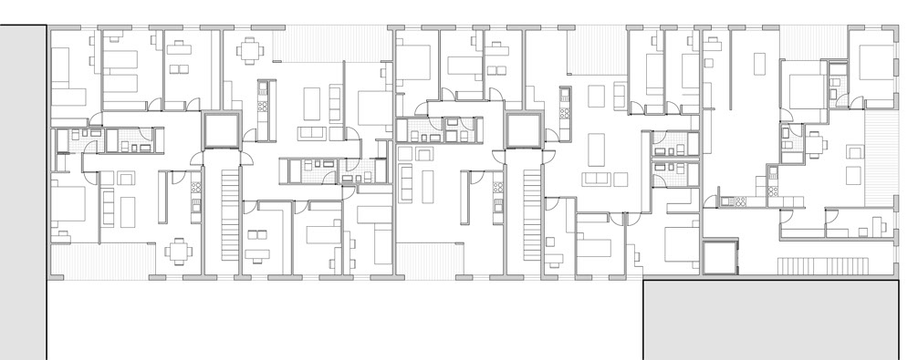
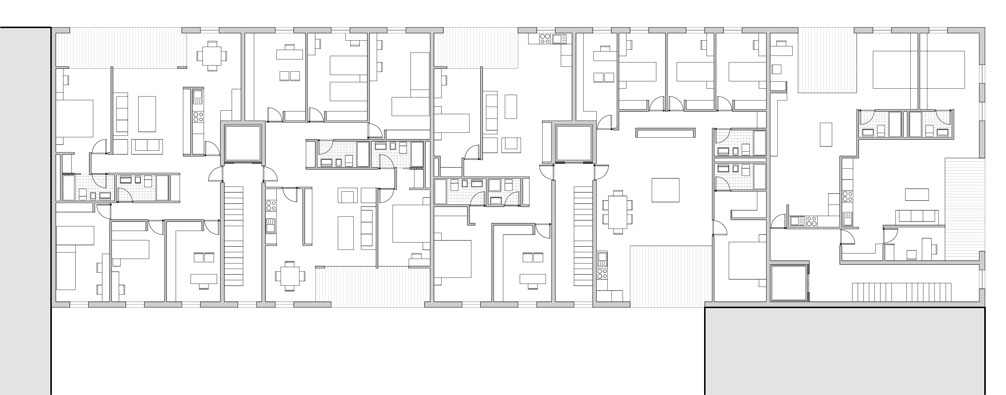
Block housing. prof. Miguel Ángel Alonso del Val The exercise posed the development of 36 homes. The project consists of two different interspersed type of floors. The facade solution consists of modulated precast concrete pieces. These parts are supported by steel profiles that mark the front of the slab. The differences between the two types of floors generate a moving facade.