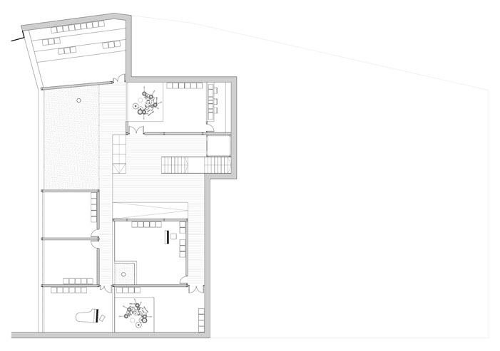
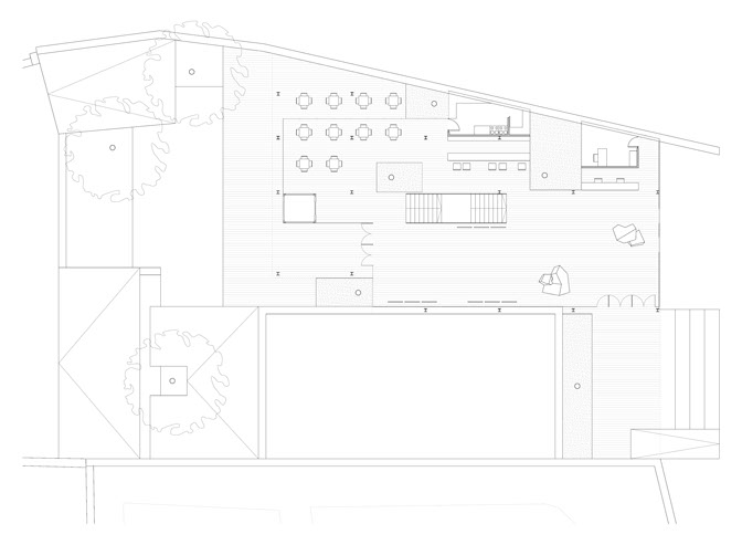
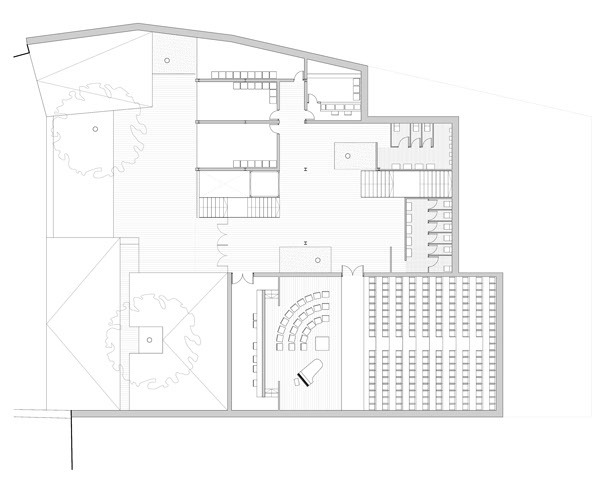
Music house. prof. Carlos Puente, César Azcárate A plot alongside the walls of Pamplona has become as residual space. In order to give a new use to it, we propose a place to the practice of music with rehearsal and recording rooms. The existing trees is what makes the distribution. Thus, the building descends while trees appear among its program.